2-к. квартира, 68.8 м²
Продажа квартир на любой вкус и бюджет
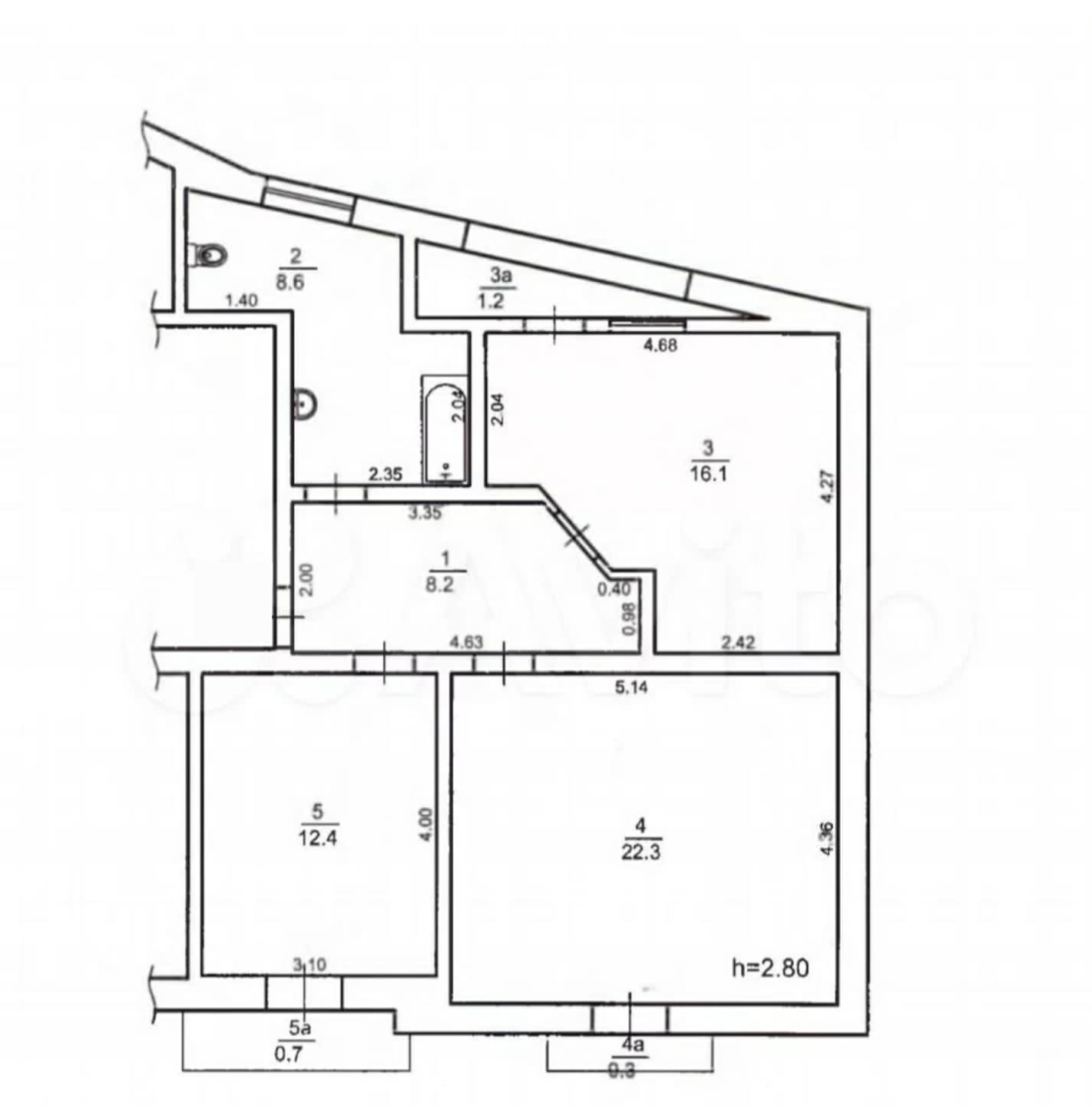
Продается просторная 2-комнатная квартира на улице Дмитрия Ульянова. Она расположена на втором этаже пятиэтажного дома и предлагает отличную планировку, которая идеально подойдет для комфортной жизни.
В квартире две изолированные комнаты площадью 12,4 и 22,3 кв.м., что позволяет создать отдельные зоны для отдыха и работы. Просторная кухня площадью 16,1 кв.м. Санузел совмещенный, его площадь составляет 8,6 кв.м.
Квартира недавно отремонтирована и готова к заселению, однако продается без мебели, что дает вам возможность обустроить пространство по своему вкусу. Обратите внимание, что дом не газифицирован.
Ссылка на объявление: https://status-realty-evpatoria.ru/sale/saleapartments/177640
7 600 000
Екатерина Михайловна


Крым республика, Евпатория, улица Дмитрия Ульянова, д 68В

Информация об объекте

Количество комнат2-к квартира Этаж2 Площадь68.8 Жилая площадь35 Площадь кухни16.1 РемонтКосметический

Информация о доме

Тип домаБлочный Этажей в доме5