1-к. квартира, 35.6 м²
Продажа квартир на любой вкус и бюджет
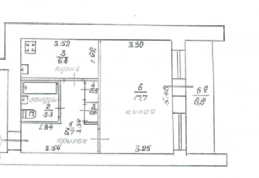
Продается однокомнатная квартира в Центре города по улице Фрунзе 23. Дом построен в 1990 г по индивидуальному проэкту, большие лестничные клетки и коридор. В доме новый лифт. В квартире сделан косметический ремонт. Квартира находится на 3-тьем этаже 9-ти этажного жилого дома. Общая площадь квартиры (без учета лоджии) 35.6 кв.м. Лоджия очень большая 6.6 кв.м., можно сделать еще одну комнату) Окна выходят во двор, середина дома. Стороны света: юго-запад. Окно на кухне стеклопакет и на лоджии поменяны окна. Пластиковые трубы. Установлены счетчики учета на газ, воду, электроэнергию. На горячую воду стоит бойлер+централизованная горячая вода. Установлен кондиционер в комнате. Встроенный кухонный ряд. Встроенный шкаф в прихожей. Квартира продается с мебелью и техникой.
Состояние «заходи и живи».
Хорошее месторасположение. Рядом школа №2, садик, магазины, супермаркеты, аптеки, вокзалы, общественный транспорт. До моря 15 минут пешком.
Документы готовы РФ. Звоните!)
Ссылка на объявление: https://status-realty-evpatoria.ru/sale/saleapartments/176898
8 300 000
Светлана Витальевна


Крым республика, Евпатория, улица Фрунзе, д 23
redeemДанный объект можно приобрести в ипотеку

Информация об объекте

Количество комнат1-к квартира Этаж3 Площадь35.6 Жилая площадь17.7 Площадь кухни6.8 Площадь комнат17.7 Лоджия1 Совмещенных санузлов1 РемонтКосметический

Информация о доме

Тип домаБлочный Этажей в доме9 Лифты пассажирские1 МусоропроводЕсть ПандусЕсть ПарковкаНаземная