3-к. квартира в новостройке, 66.3 м²
Современные квартиры в новых жилых комплексах
Предлагается к продаже 3-комнатная квартира в Жилом Комплексе «Евпатория».
Архитектурный ансамбль в классическом итальянском стиле с продуманным зонированием, подсветкой фасадов, комплексным парковым благоустройством, собственным фонтаном, бульваром и охраняемым паркингом.
Все дома комплекса введены в эксплуатацию, закончены все строительные работы, территория полностью благоустроена.
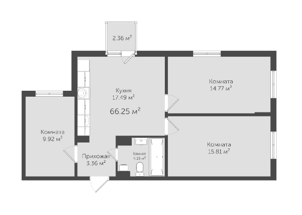
Все квартиры продаются «с ключами» и готовы к выполнению отделочных работ. Адрес и кадастровый номер уже присвоены. Предлагаемая квартира расположена в корпусе Д, на третьем этаже шестиэтажного дома, общая площадь 66,3 кв.м., жилые комнаты: 15,8 кв.м., 9,9 и 14,8 кв.м., просторная кухня 17,5 кв.м. с выходом на незастекленный балкончик 2,36 кв.м, совмещенный санузел. Отопление центральное, дом не газифицирован. Лифт в каждом подъезде.
Комплекс расположен в 3 км от новой набережной курорта. До лучших песчаных пляжей – всего 5 минут на авто. В пешей доступности от дома находятся детские сады, школы, медицинские центры, несколько сетевых супермаркетов поблизости.
Современные и классические планировки квартир на любой вкус, квартиры от 33 до 107 квадратных метров. Квартиры с террасами на последних этажах или квартиры с отдельным входом и своим садом на первом. Варианты с отделкой и без, а также с полной меблировкой по вашему выбору.
Главная площадь с фонтаном и башней с часами стала новой точкой притяжения горожан и сценой для праздников, а бульвар - любимым местом для променада.
Зоны отдыха, современные детские и спортивные площадки - здесь все создано, чтобы уютно жить и комфортно отдыхать.
Рестораны и кафе, цветочный бутик, аптека, химчистка, винотека — все необходимые сервисы находятся в шаговой доступности на первых этажах комплекса. Территория комплекса засажена различными деревьями, цветами и кустарниками - прекрасное место для жизни и отдыха.
Недвижимость оформлена в собственность Застройщика ООО «Петрокомплект». Сделка оформляется как первичная покупка недвижимости, для которой доступны все существующие льготные программы по ипотеке и сертификатам.
Обращайтесь, мы подберем для Вас индивидуальное предложение!

Ссылка на объявление: https://status-realty-evpatoria.ru/buildings/53047
12 256 250
Супрун Екатерина Михайловна


Крым республика, Евпатория, улица им.60-летия ВЛКСМ, д 31 redeemДанный объект можно приобрести в ипотеку

Информация об объекте

Количество комнат3-к квартира Этаж3 Площадь общая66.3 Площадь жилая40.5 Балконов1 Совмещенных санузлов1 ОкнаДвор + улица ОтделкаБез отделки

Информация о доме

Название ЖКЖК Евпатория Год сдачи2022 КварталIII Дом сданДа Тип домаМонолитный Этажей в доме6 Пассажирских лифтов1 ПарковкаНаземная https://xn----8sbfldqj0bhmu3n.xn--p1ai/

Цена и условия сделки

Тип продажиСвободная продажа